ENGLISH
产品中心
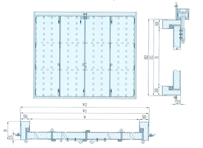
A15防火折叠门
2017-06-06
WX-XF-09-00
适用于具有A级分割要求,防火等级为A15要求的围壁处所。
通孔尺寸WxH
框外形寸W1xH1
围壁开口尺寸W2xH2
门板厚度T
门框深度D
2000x1800
2100x1900
2105x1905
40
D≥90
2200x1900
2300x2000
2305x2005
40
2400x1950
2500x2050
2505x2055
40
2500x2000
2600x2100
2605x2105
40
2620x2050
2720x2150
2725x2105
40
标记示例: 通孔尺寸为1000x1600mm,左开,A60双扇风雨密气密门:A60双扇风雨密气密门1000x1600L 252XF005M-00-S
主页导航
公司简介
新闻中心
产品展示
资质下载
视频中心
在线留言
联系我们