Chinese

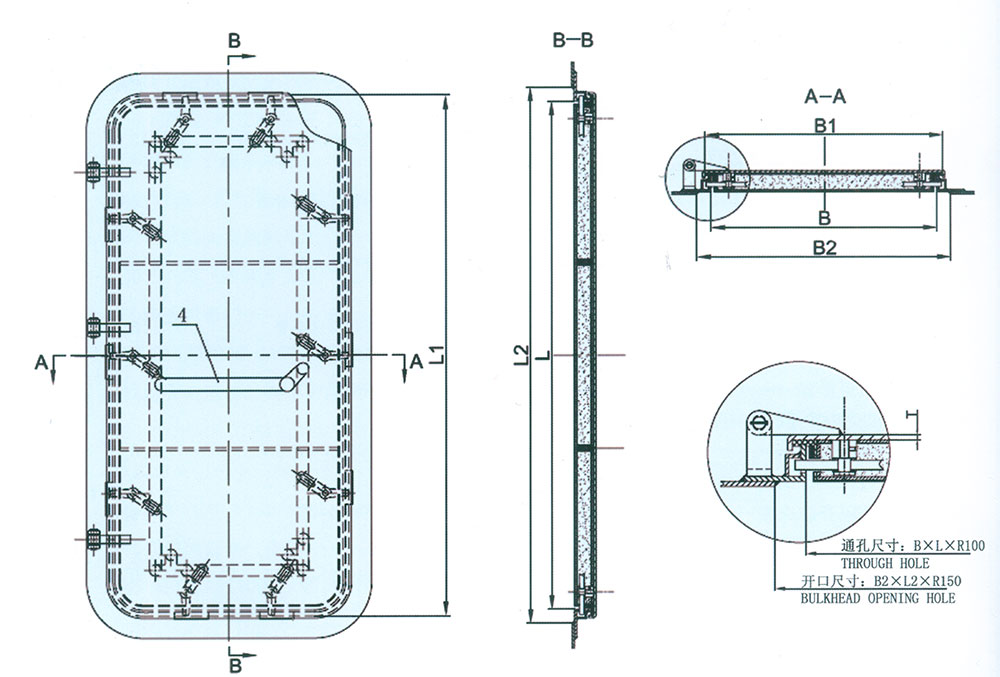
A60 Steel watertight door

2017-06-07