Chinese

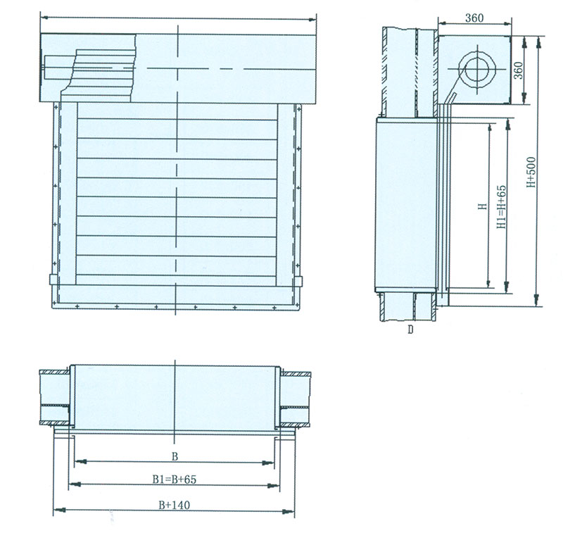
A0 Fireproof rolling service window

2017-06-06