Chinese

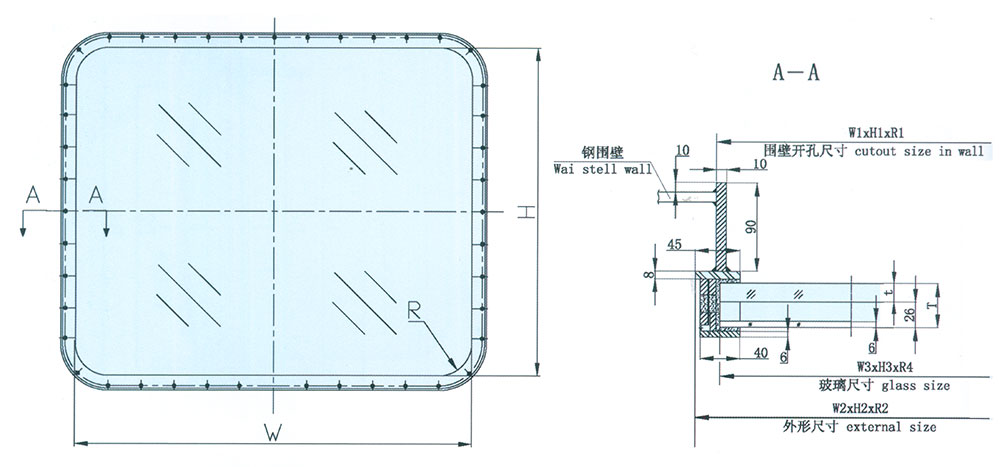
A60 Fireproof rectangular window

2017-06-06