2017-06-06

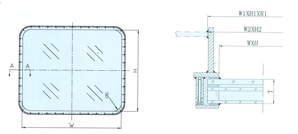
| WxHxR nominal size | W2xH2xR2 external size | W1xH1xR1 opening size of bulkhead | T glass thickness | ||||
| E | F | ||||||
| 400x560 | R50 | 510x670 | R105 | 452x612 | R76 | 12+6A+8+22A+5 | 12+6A+8+22A+5 |
| 450x630 | R100 | 560x740 | R155 | 502x682 | R126 | 12+6A+8+22A+5 | 12+6A+8+22A+5 |
| 500x710 | R100 | 610x820 | R155 | 552x762 | R126 | 15+6A+8+22A+5 | 12+6A+8+22A+5 |
| 900x630 | R100 | 1010x740 | R155 | 952x682 | R126 | 19+6A+8+22A+5 | 12+6A+8+22A+5 |
| 1000x800 | R100 | 1110x910 | R155 | 1052x852 | R126 | 19+6A+8+22A+5 | 12+6A+8+22A+5 |
| 1200x800 | R100 | 1310x910 | R155 | 1252x852 | R126 | — | 15+6A+8+22A+5 |
| 1400x800 | R100 | 1510x910 | R155 | 1452x852 | R126 | 根据计算或客户要求 | |
| 1600x100 | R100 | 1710x1110 | R155 | 1652x1052 | R126 | ||
| 1800x1200 | R100 | 1910x1310 | R155 | 1852x1252 | R126 | ||
| 2000x1200 | R100 | 2110x1310 | R155 | 2052x1252 | R126 | ||